Bouwgrond te Drongen
Deze grond gelegen in de verkaveling "Hanepoot" aan de Brouwerijstraat is de nog één van enige geschikt voor een open bebouwing.
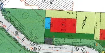
De oriëntatie is ideaal doordat het zuidoost is gelegen en grenzend aan het groene bosje in wording.
De ideale plek om tot rust te komen met uw gezin.
De prijs van de grond is inclusief infrastructuurwerken en Registratierechten
Voor inlichtingen bellen naar Conny 0498/696563
Info@flameestate.be
Kenmerken
| Adres: | Elshoekstraat 10 Drongen |
| Referentie: | 2025/L1/9031 |
| Vraagprijs: | € 186.170 |
| Type: | Grond |
| Perceeloppervlakte: | 395 m² |
| Overstromingsgevoelig: | Niet meegedeeld |
| Overstromingsgebied: | Niet meegedeeld |
| Erfgoed: | Niet meegedeeld |
Niet gevonden wat u zocht?
Laat het zoeken aan ons over!
Ik wens meer informatie over volgend pand:
Drongen
Elshoekstraat
10
€ 186 170
Vertel een vriend
Drongen
Elshoekstraat
10
€ 186 170
Plan uw bezoek
Drongen
Elshoekstraat
10